POŁOWA BLIŹNIAKA JUGOWICE

Kraków, Podgórze, Jugowice, Kustronia

2 500 000 PLN

Numer oferty205510
Typ transakcjiSprzedaż
Cena2 500 000 PLN
Powierzchnia271 m2
Cena za m29 225 PLN / m2
Liczba pokoi5
Powierzchnia działki m2500
Rok budowy2001
Standard wykończeniabardzo dobry
Stan domudo zamieszkania
Rynekwtórny
Typ zabudowybliźniak
Typ dachuskośny
Technologiamurowana
Materiał budowlanypustak
Typ drogiasfaltowa
Typ ogrodzeniamieszane
Powierzchnia mieszkalna271
Powierzchnia użytkowa271
Elewacjatynk
Liczba kondygnacji1
Forma własnościhipoteczne
OknaPCV
Podłogaparkiet
Ścianygładź gipsowa
Typ Balkonujest
Liczba miejsc parkingowych3
Garażw bryle
Ogrzewaniegazowe
Prądjest
Kanalizacjamiejska
Gazmiejski
Wodamiejska
POŁOWA BLIŹNIAKA JUGOWICE (Kraków, Podgórze, Jugowice, Kustronia)

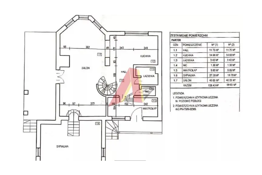
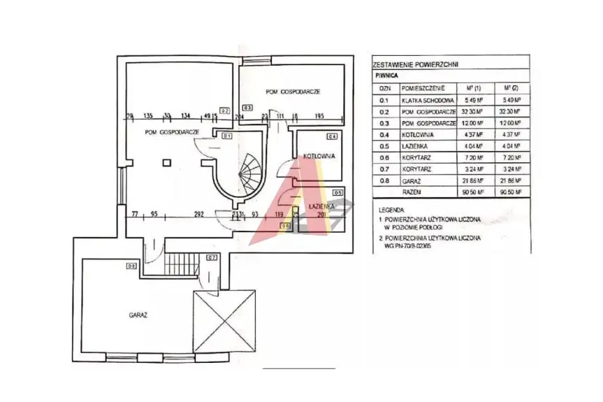
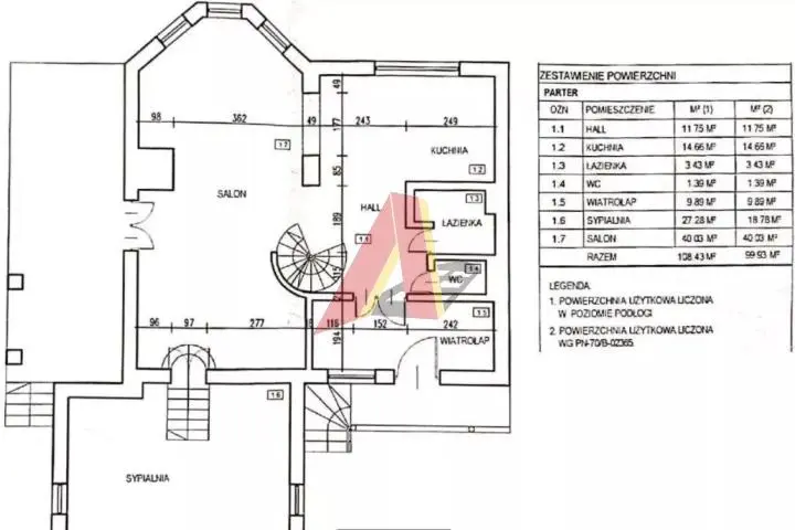
DOM W ZABUDOWIE BLIŹNIACZEJ JUGOWICE!!!wybudowany i wykończony z materiałów bardzo dobrej jakości. Gotowy do zamieszkania, z wyposażeniem. /możliwy zakup bez wyposażenia/ Dom po generalnym remoncie w 2017r. / elewacje, temomodernizacja, okna, drzwi oraz całe wnętrze/ Parter: garaż, salon podzielony na dwie strefy - z wyjściem na ogród, kuchnia z jadalnią, duży pokój z otwartą garderobą, wiatrołap, hall, łazienka z prysznicem walkin i WC. Piętro: cztery pokoje, garderoba, łazienka z wanną, hall, wyjście na balkon. Okolica bardzo dobrze skomunikowana, blisko przystanki mpk i pętla Borek Fałęcki.



Więcej informacji udzielamy telefonicznie lub mailowo . Pośrednik odpowiedzialny: licencja 2103
Oferujemy bezpłatną pomoc przy uzyskaniu kredytu na zakup nieruchomości

Oferta wysłana z programu IMO dla pośredników.
Informacje
Piwnica Meble Poddasze Klimatyzacja Domofon alarm Rolety antywłamaniowe
Kraków, Podgórze, Jugowice, Kustronia

Kontakt